Karstraat 11b
- Vraagprijs
- € 399.000,- k.k.
- Type
- Woonhuis
- Soort
- eengezinswoning
- Type woonhuis
- vrijstaande woning
- Bouwjaar
- 1960-1970
- Kamers
- 4
- Slaapkamers
- 3
- Woonopp.
- 108 m²
- Energielabel
- B
De Support Makelaar
vasb#qrfhccbegznxrynne.ay
www.desupportmakelaar.nl
0413249001
Omschrijving
In het gezellige centrum van Mill mogen wij deze sfeervolle, netjes onderhouden en comfortabele woning aanbieden! Dit huis beschikt over een ruime woonkamer, fraaie open keuken, een multifunctionele ruimte, drie netjes afgewerkte slaapkamers en keurig sanitair. En laten we vooral de heerlijke tuin met tuinhuis en volop privacy niet vergeten!
Dankzij de centrale ligging woon je vlakbij winkels, horeca, scholen, sportclubs, openbaar vervoer en uitvalswegen. Dit is een mooie kans voor wie comfortabel wil wonen op een heerlijke plek in Mill!
Over de ligging en de buurt:
Deze vrijstaande woning (1960) ligt aan een drukke weg in het centrum van Mill. Het levendige centrum voorziet jou van allerlei winkels voor je dagelijkse boodschappen en leuke horecagelegenheden.
De groene omgeving, met volop wandel-, fiets- en recreatiemogelijkheden, maakt wonen hier extra prettig. Je woont op loopafstand van het Aldendrielpark en op fietsafstand van de Langenboomse Bossen en recreatiegebied De Kuilen. Ook andere belangrijke voorzieningen, zoals sportclubs, scholen en de huisarts, liggen allemaal vlakbij.
De bereikbaarheid van deze woning is uitstekend. Er is een bushalte op loopafstand en met de auto zijn de A73 (richting Nijmegen en Venlo) en de A50 (richting Eindhoven en Den Bosch) snel bereikbaar.
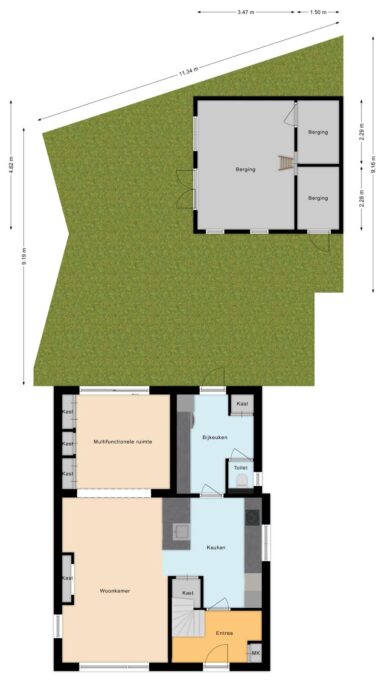
Indeling van de woning:
Begane grond:
Achter de voordeur bevindt zich een ruime entreehal met de meterkast, een trap met verlichting en toegang tot de woonkamer met open keuken. De woonkamer is ruim opgezet en voorzien van een betonvloer met vloerverwarming. De wanden zijn hier afgewerkt in rustige kleuren. Dankzij de aanwezigheid van meerdere grote ramen valt er veel natuurlijk licht naar binnen.
Via de woonkamer loop je zo de multifunctionele ruimte binnen. Deze ruimte kan dienen als kantoor of hobbykamer en is voorzien van een tapijtvloer. Vanaf hier geeft een schuifpui toegang tot de tuin. De woonkamer en de multifunctionele ruimte kunnen van elkaar worden gescheiden. In de woonkamer bevindt zich een (goed verborgen) airconditioning.
De ruim opgezette keuken heeft een modern design met witte keukenkastjes en donkere werkbladen. Hier tref je de volgende hoogwaardige apparatuur aan: vaatwasser, stoomoven, inductie fornuis, afzuigkap, koelkast en Quooker. Het huis beschikt over een ruime, praktische bijkeuken. Hier vind je een extra keukenblok met wastafel en de aansluitingen voor de wasmachine en droger. Vanaf de bijkeuken heb je toegang tot de achtertuin en een toiletruimte met zwevend toilet.
Eerste verdieping:
Deze verdieping telt drie slaapkamers en de badkamer. Alle slaapkamers zijn voorzien van een mooie laminaatvloer en keurig afgewerkte wanden. De lichtinval is in alle kamers uitstekend. Twee van de drie slaapkamers zijn daarnaast uitgerust met inbouwspots. Eén slaapkamer beschikt over airconditioning.
De retro badkamer is in warme kleuren betegeld en uitgerust met een zwevend toilet, badmeubel met wastafel en ligbad met regendouche. Via de badkamer heb je toegang tot een dakterras.
Tuin:
Wat een heerlijke tuin is dit! Deze grote tuin is recentelijk vernieuwd en netjes aangelegd. De tuin is grotendeels voorzien van tegels, maar heeft ook een groen gedeelte. Er is ruimte voor meerdere gezellige zitjes, een tuintafel en speelgelegenheid voor de kids. De tuin is rondom uitstekend beschut met schuttingen, waardoor je volop privacy hebt.
In de tuin staat een groot houten tuinhuis. Hier heb je de mogelijkheid om een heerlijke, overdekte loungeplek te creëren. Verder biedt het tuinhuis genoeg ruimte voor je tuinspullen.
Parkeren:
Parkeren op eigen terrein voor het huis.
Algemeen:
De woning heeft enkele bouwkundige aandachtspunten. Bij een bezichtiging krijg je vooraf een volledig bouwkundig rapport aangeleverd. Hier is in de prijsstelling al rekening mee gehouden.
Kenmerken van de woning:
-Sfeervolle, vrijstaande woning met heerlijke tuin
-Recentelijk vernieuwde achtertuin met groot tuinhuis
-Ruime woonkamer met moderne open keuken
-Drie keurig afgewerkte slaapkamers
-Vloerverwarming op de begane grond
-Voorzien van zonnepanelen
-Gelegen in het centrum
-Veel voorzieningen in de buurt
-Bushalte op loopafstand
-Nabij uitvalswegen
-Energielabel: B
-Volledige eigendom
In the cozy center of Mill, we are pleased to offer this attractive, well-maintained and comfortable home! This house has a spacious living room, beautiful open kitchen, a multifunctional room, three nicely finished bedrooms and good sanitary facilities. And let's not forget the lovely garden with a garden shed and plenty of privacy!
Thanks to its central location, you will be close to shops, restaurants, schools, sports clubs, public transport and major roads. This is a great opportunity for anyone who wants to live comfortably in a wonderful location in Mill!
About the location and neighborhood:
This detached house (1960) is located on a busy road in the center of Mill. The lively center offers all kinds of shops for your daily shopping and nice restaurants.
The green surroundings, with plenty of walking, cycling and recreational opportunities, make living here even more pleasant. You will be within walking distance of the Aldendrielpark and within cycling distance of the Langenboomse Bossen and De Kuilen recreation area. Other important amenities, such as sports clubs, schools and the doctor, are also nearby.
This house is very easy to reach. There is a bus stop within walking distance and the A73 (towards Nijmegen and Venlo) and the A50 (towards Eindhoven and Den Bosch) are quickly accessible by car.
Layout of the house:
Ground floor:
Behind the front door is a spacious entrance hall with the meter cupboard, a staircase with lighting and access to the living room with open kitchen. The living room is spacious and has a concrete floor with underfloor heating. The walls here are finished in calm colors. Thanks to the presence of several large windows, there is plenty of natural light.
The living room leads directly into the multifunctional room. This room can serve as an office or hobby room and has carpeted flooring. From here, sliding doors provide access to the garden. The living room and the multifunctional room can be separated from each other.
The spacious kitchen has a modern design with white kitchen cabinets and dark countertops. Here you will find the following high-quality appliances: dishwasher, steam oven, induction stove, extractor hood, refrigerator and Quooker.
In the house there is also a spacious, practical utility room. Here you will find an extra kitchen unit with sink and connections for the washing machine and dryer. From the utility room, you have access to the backyard and a toilet room with a floating toilet.
First floor:
This floor has three bedrooms and the bathroom. All bedrooms have beautiful laminate flooring and neatly finished walls. The light in all rooms is excellent. Two of the three bedrooms are also equipped with recessed spotlights. One bedroom has air conditioning. The retro bathroom is tiled in warm colors and equipped with a wall-mounted toilet, vanity unit with sink and bathtub with rain shower. The bathroom provides access to a roof terrace.
Garden:
What a lovely garden this is! This large garden has been recently renovated and neatly landscaped. The garden is largely tiled, but also has a green area. There is space for several cozy seating areas, a garden table and a play area for the kids. The garden is well sheltered on all sides by fences, giving you plenty of privacy.
There is a large wooden garden shed in the garden. Here you can create a lovely, covered lounge area. The garden shed also offers plenty of space for your garden equipment.
Parking:
Parking on private property in front of the house.
General:
The property has a few structural issues. You will receive a full structural report in advance of any viewing. This has already been taken into account in the pricing.
Features of the house:
-Attractive, detached house with lovely garden
-Recently renovated backyard with large garden shed
-Spacious living room with modern open kitchen
-Three neatly finished bedrooms
-Underfloor heating on the ground floor
-Equipped with solar panels
-Located in the center
-Many amenities nearby
-Bus stop within walking distance
-Near major roads
-Energy label: B
-Full ownership
Kenmerken
Overdracht
- Vraagprijs
- € 399.000,- k.k.
- Status
- Verkocht
- Aanvaarding
- in overleg
Bouw
- Type
- Woonhuis
- Soort
- eengezinswoning
- Type woonhuis
- vrijstaande woning
- Bouwjaar
- 1960-1970
- Onderhoud binnen
- goed
- Onderhoud buiten
- redelijk
Woonhuis
- Kamers
- 4
- Slaapkamers
- 3
- Verdiepingen
- 2
- Woonopp.
- 108 m²
- Inhoud
- 377 m³
- Perceelopp.
- 295 m²
Energie
- Energie label
- B
Garage
- Type
- geen garage


































